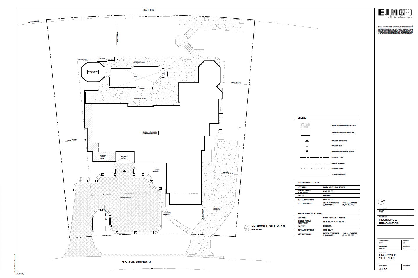
A Florida Keys major renovation residence that involved site surveys, design development, technical drawings, meeting local regulations, and site constraints with a lot of thought and creativity.I worked closely with the client to create a layout that would encompass everything the client envisioned, prioritizing the landscape and views of the house to the ocean canal.The addition included a small change in the roof of the house, but I like to keep memory intact, and so everything has a deep conversation with the existing elements of the house.The work with this project was entirely by Juliana Cestaro, from initial concept to construction documents, working closely with the owner, and Orca Building Regulations.

